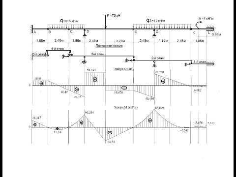
Кинематический анализ и структурный анализ конструкций. Опоры. Связи. Мгновенная изменяемость.

В видео рассмотрены основы строительной механики стержневых систем, включая понятия о простых и кратных шарнирах, расчётных схемах опор конструкций, а также важнейшие принципы формирования несущих каркасов сооружений. Кроме этого, видео содержит фундаментальные правила создания структурно или геометрически неизменяемых каркасов зданий и сооружений. Ссылка на pdf занятия:
Поддержать канал: https://www.donationalerts.com/r/acad...

Смотрите также