Сайт использует сервис веб-аналитики Яндекс Метрика с помощью технологии «cookie». Пользуясь сайтом, вы даете согласие на использование данной технологии.
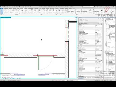
Семейство раздвижной двери в Revit - Уроки по Revit. С данного видео вы узнаете как создавать параметры в семействе Revit. Так же в видео вы узнаете как использовать семейство в семействе и назначать параметры вложенного семейства. Если у вас будут какие-то сложности с созданием семейства двери, напишите мне в Telegram или Facebook, так же можете написать в комментарии я буду рад помочь вам. При поддержки сайтов и Facebook - / newcad Telegram - #RevitУроки #ВидеоУрокиRevit #СемействаRevit #Revit #Двери