Сайт использует сервис веб-аналитики Яндекс Метрика с помощью технологии «cookie». Пользуясь сайтом, вы даете согласие на использование данной технологии.
Политика конфиденциальности | Согласие на обработку персональных данных
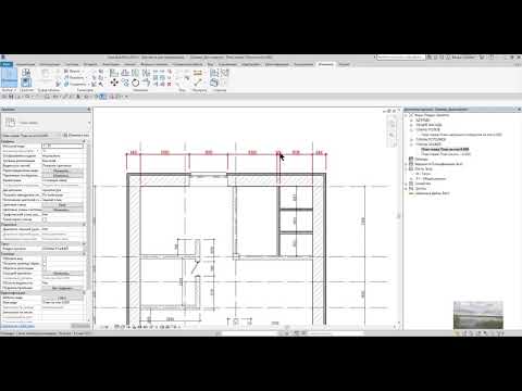
Autodesk Revit: Размеры и их назначение
От 1 принтера на балконе до фермы в 70 принтеров. Как проходит день 3D печатника
SHAZAM Top 50🏖️Лучшая Музыка 2025🏖️Зарубежные песни Хиты🏖️Популярные Песни Слушать Бесплатно #40
🗣️Знакомый хриплый голос на пленках Миндича: Зе УКАЗАЛИ на дверь! Роль ФБР. Крах фронта - Бондаренко
Конец Зеленского
Ани Лорак - Лучшие песни (The Best 2018)
Autodesk Revit: Вентканал в стене (Семейство)
Пу и Си “проспали” армаду США / Карибы на краю бездны / Что делать с ворами во власти? /1043/ Швец
Нового робота нашего с ИИ видел?! ХОДИТ ОДИН В ОДИН КАК Я...